Quadrilocale in vendita

Frattamaggiore, Via Sossio Russo
Informazioni in agenzia
4 locali 4 locali
180 Mq 180 Mq
2 bagni 2 bagni

Quadrilocale in vendita

Frattamaggiore, Via Sossio Russo

Descrizione annuncio

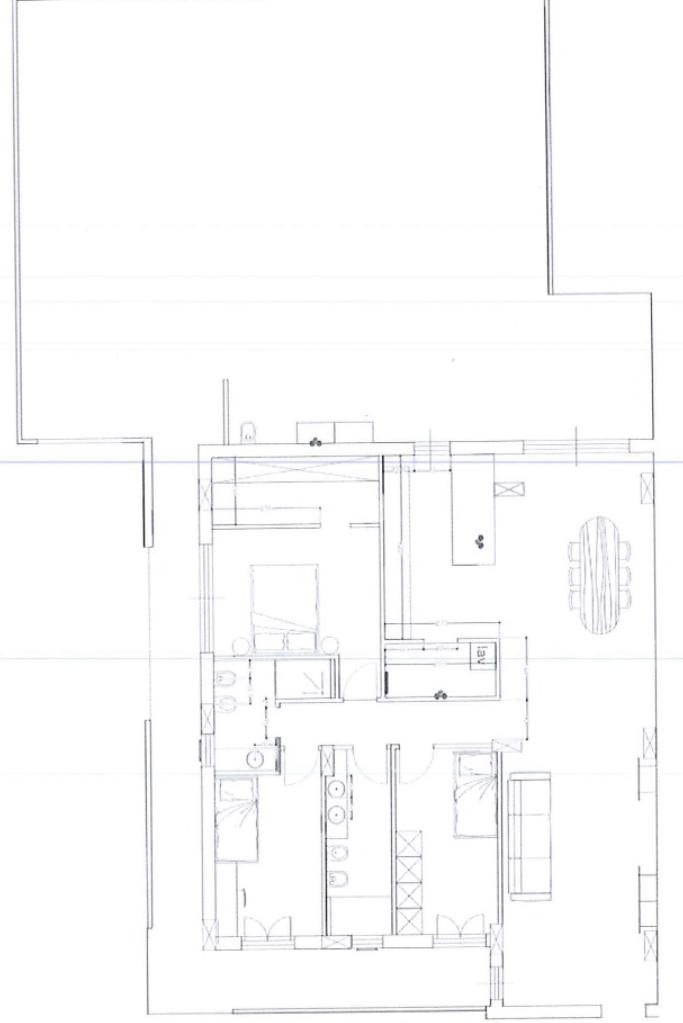
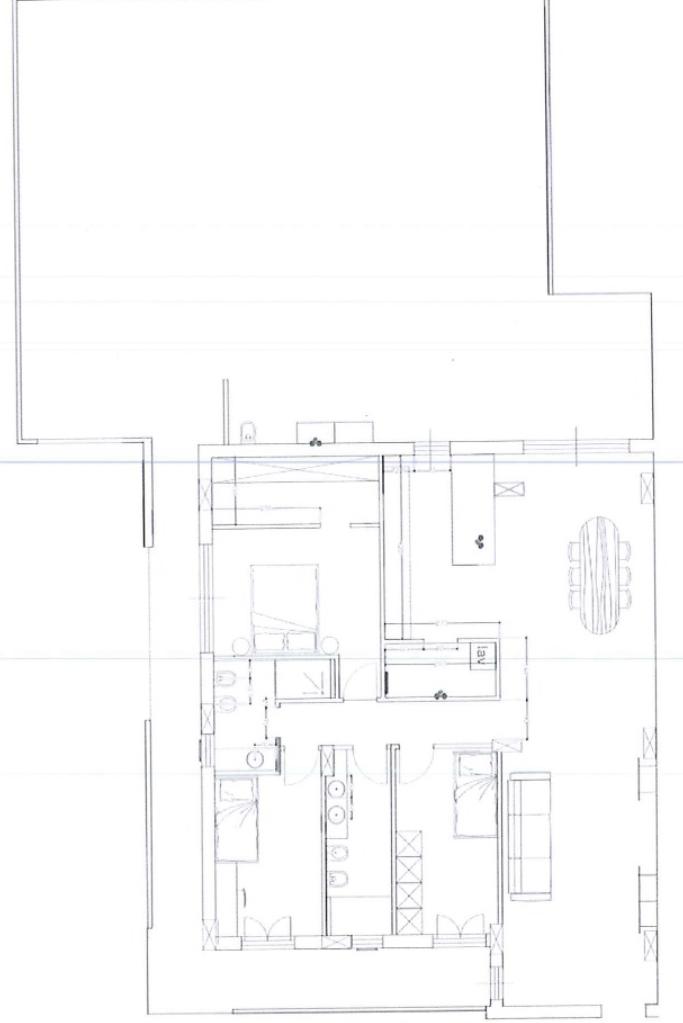
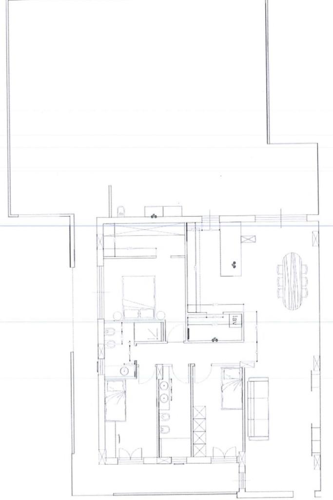
NUOVA COSTRUZIONE - ATTICO CON TERRAZZO A LIVELLO

Un progetto immobiliare innovativo ed ambizioso che sorge in una zona strategica di Frattamaggiore. L'appartamento che proponiamo si trova in un fabbricato che si sviluppa su tre piani, oltre ad un piano terra destinato a posti auto coperti. L'immobile è un attico con esclusivo terrazzo a livello. La soluzione ci accoglie subito nella zona giorno: un ambiente open space ben organizzato e spazioso da cui si accede allo splendido terrazzo munito di attacchi acqua per poter installare una vasca multifunzione o addirittura una piscina. Dal disimpegno abbiamo accesso alle tre camere da letto con affaccio su balcone: la camera matrimoniale è munita di cabina armadio. Sono presenti due bagni, finestrati: i rivestimenti, i sanitari, docce e lavabi saranno di alta qualità. L'appartamento sarà dotato di: sistema di domotica, riscaldamento a pavimento, pannelli solari, impianto di climatizzazione, infissi ed avvolgibili di ultima generazione per massimizzare l'isolamento acustico. L' immobile, anche del lastrico solare di copertura di proprietà, sarà completato per metà del 2026. Chiamaci per scoprire tutti i dettagli di questo immobile!

Mostra tutto

Nelle vicinanze

Trasporto pubblico Trasporto pubblico
Frattamaggiore-Grumo Nevano
Frattamaggiore-Grumo Nevano
300 m
Sant'Antimo-Sant'Arpino
Sant'Antimo-Sant'Arpino
1,7 Km
Ricariche auto elettriche Ricariche auto elettriche
Stazione Frattamaggiore - Grumo Nevano | EnelX
290 m
Scuole Scuole
Istituto Comprensivo Bartolomeo Capasso
260 m
Istituto Paritario Amerigo Vespucci
310 m
Istituto Comprensivo Giuseppe Mazzini
320 m
Scuole
350 m
Liceo Giordano Bruno - Sede Grumo Nevano
700 m
Farmacia Farmacia
Farmacia Manna
950 m
Farmacia D'Amore
1,6 Km
Farmacia
1,7 Km
Farmacia Vivo
1,9 Km
Farmacia Papa Antonia
2,5 Km
Ospedali Ospedali
Ospedale Civile di Frattamaggiore "San Giovanni di Dio"
840 m
Supermercati Supermercati
Conad
390 m
Sigma
840 m
Supermercati
910 m
Decò
980 m
MD
1,0 Km
Negozi Negozi
Officine Nazzaro 1951
300 m
United Colors of Benetton
570 m
OVS
910 m
La Cremiere
1,5 Km
Negozi
1,6 Km
Bar Bar
Bar della Stazione
290 m
Pacilio Caffetteria
940 m
Bar Dante
980 m
Bar Mele
1,3 Km
Bar Gallo
1,3 Km
Ristoranti Ristoranti
PalaPizza
320 m
Anema e Pizza
340 m
Sapureat
450 m
Antica Pizzeria Frattese
460 m
Grumè
1,1 Km
Mostra tutto

Caratteristiche

Rif.:
61154056
Piano:
3 di 3 con ascensore (Piano attico)
Posti auto:
2
Balconi:
1
Terrazzi:
1
Camere da letto:
3
Mostra tutto
Prezzo Prezzo
Informazioni in agenzia
Spese annue Spese annue
€ 0
Proponi il tuo prezzoProponi il tuo prezzo
Immobile valutato con T·Valuta

Classe Energetica

A1
A1
A1
A1
A1
A1
A1
A1
A1
EP globale non rinnovabile:
59.54 kW h/m² anno
EP globale rinnovabile:
1.22 kW h/m² anno
EP invernale del fabbricato:
EP estiva del fabbricato:
Anno di costruzione:
2025
Riscaldamento:
Autonomo
Tipo impianto:
A pavimento
Tipo alimentazione:
Pannelli

Ti interessa visionare l'immobile?

Fissa un appuntamento  Fissa un appuntamento

Richiedi informazioni

Clicca su Leggi per aprire l'informativa
* Questi campi sono obbligatori
Affiliato
Mc Immobiliare Srl
Corso Durante, 181 80027 Frattamaggiore (NA)

Il nostro staff


  • Anna Santoro
    Coordinatrice

  • Fabio Ciccarelli
    Affiliato

  • Filippo Compagnone
    Collaboratore
Corso Durante, 181 80027 Frattamaggiore (NA)
Zona: Frattamaggiore
Mostra su mappa
Orari: dal lunedì al venerdì 9.00-13.00 - 15.30-20.30; sabato 9.00-13.00 - 16.30-19.30; domenica 11.00-13.00
Affiliato
Mc Immobiliare Srl
Corso Durante, 181 80027 Frattamaggiore (NA)

2026 Tecnocasa Franchising S.p.A. - P. IVA 08365160152 - Via Monte Bianco 60/A 20089 Rozzano (MI). Ogni agenzia ha un proprio titolare ed è autonoma. Privacy policy | Policy utilizzo | Cookie policy