5 locali in vendita

Frattamaggiore, Via Pasquale Ianniello
€ 350.000
5 locali 5 locali
200 Mq 200 Mq
2 bagni 2 bagni

5 locali in vendita

Frattamaggiore, Via Pasquale Ianniello

Descrizione annuncio

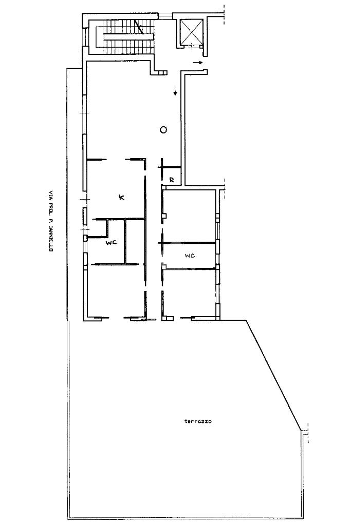
-- IN TRATTATIVA -- In contesto riservato e tranquillo, all’interno di un fabbricato di sole due unità abitative, proponiamo in vendita una soluzione abitativa che unisce comfort e funzionalità.
L’ingresso apre su un ampio e luminoso soggiorno, perfettamente separato dalla cucina tramite un raffinato scrigno in vetro, elemento di design che garantisce continuità visiva e grande luminosità.
Un lungo corridoio conduce alla zona notte, composta da due camere da letto e da una splendida camera padronale completa di bagno privato e cabina armadio, ideale per chi cerca spazi ben organizzati e riservati.
La casa dispone inoltre di ripostiglio, lavanderia e altro bagno con vasca.
Il vero punto di forza dell’abitazione è lo splendido terrazzo a livello, perfetto per momenti di relax, cene all’aperto e per vivere gli spazi esterni in ogni stagione.
Completa la proprietà un comodo box auto al piano terra.
Una soluzione ideale per chi desidera spazi generosi, pochi vicini e un’abitazione già pronta da vivere.

Mostra tutto

Nelle vicinanze

Trasporto pubblico Trasporto pubblico
Frattamaggiore-Grumo Nevano
Frattamaggiore-Grumo Nevano
1,4 Km
Sant'Antimo-Sant'Arpino
Sant'Antimo-Sant'Arpino
2,2 Km
Ricariche auto elettriche Ricariche auto elettriche
Stazione Frattamaggiore - Grumo Nevano | EnelX
1,4 Km
Scuole Scuole
Istituto Comprensivo Giuseppe Mazzini
790 m
Istituto Comprensivo Bartolomeo Capasso
840 m
Istituto Nuovo Polo Scolastico Anselmo D'Aosta
870 m
Scuole
920 m
Succursale Enrico Fermi
1,2 Km
Farmacia Farmacia
Farmacia Manna
590 m
Farmacia
980 m
Farmacia D'Amore
2,6 Km
Farmacia Vivo
3,0 Km
Ospedali Ospedali
Ospedale Civile di Frattamaggiore "San Giovanni di Dio"
260 m
Supermercati Supermercati
Supermercati
340 m
MD
460 m
Conad
880 m
ilCentro Superstore
1,3 Km
Sigma
1,5 Km
Negozi Negozi
United Colors of Benetton
900 m
OVS
920 m
Officine Nazzaro 1951
930 m
Il Mercatone
1,4 Km
La Cremiere
2,5 Km
Bar Bar
Pacilio Caffetteria
580 m
Bar
910 m
Bar Dante
1,1 Km
Bar della Stazione
1,4 Km
Bar Gallo
1,5 Km
Ristoranti Ristoranti
Sapureat
680 m
PalaPizza
980 m
Antica Pizzeria Frattese
1,1 Km
Tipicheria Napoletana
1,2 Km
Ristoranti
1,3 Km
Mostra tutto

Caratteristiche

Rif.:
61159576
Piano:
1 di 1 con ascensore (Piano medio)
Box:
1
Balconi:
1
Terrazzi:
1
Camere da letto:
3
Mostra tutto
Prezzo Prezzo
€ 350.000
Rata mutuo Rata mutuo
€ 1.650 / mese
Spese annue Spese annue
€ 0
Proponi il tuo prezzoProponi il tuo prezzo
Immobile valutato con T·Valuta

Classe Energetica

G
G
G
G
G
G
G
G
G
EP globale non rinnovabile:
241.33 kW h/m² anno
EP globale rinnovabile:
0.63 kW h/m² anno
EP invernale del fabbricato:
EP estiva del fabbricato:
Anno di costruzione:
1995
Riscaldamento:
Autonomo
Tipo impianto:
A radiatori
Tipo alimentazione:
Metano

Ti interessa visionare l'immobile?

Fissa un appuntamento  Fissa un appuntamento

Richiedi informazioni

Clicca su Leggi per aprire l'informativa
* Questi campi sono obbligatori

Calcola il tuo mutuo

Semplice e senza impegno
Anticipo

( % )
Mutuo

( % )

pochi semplici passi

inserisci i tuoi dati
Questionario completato
Grazie per aver richiesto un appuntamento senza impegno con un nostro Consulente del Credito e Assicurativo.

Hai inserito correttamente tutti i dati necessari e a breve riceverai una e-mail con un link da convalidare per inviare i tuoi dati.
Affiliato
Mc Immobiliare Srl
Corso Durante, 181 80027 Frattamaggiore (NA)

Il nostro staff


  • Anna Santoro
    Coordinatrice

  • Fabio Ciccarelli
    Affiliato

  • Filippo Compagnone
    Collaboratore
Corso Durante, 181 80027 Frattamaggiore (NA)
Zona: Frattamaggiore
Mostra su mappa
Orari: dal lunedì al venerdì 9.00-13.00 - 15.30-20.30; sabato 9.00-13.00 - 16.30-19.30; domenica 11.00-13.00
Affiliato
Mc Immobiliare Srl
Corso Durante, 181 80027 Frattamaggiore (NA)

2026 Tecnocasa Franchising S.p.A. - P. IVA 08365160152 - Via Monte Bianco 60/A 20089 Rozzano (MI). Ogni agenzia ha un proprio titolare ed è autonoma. Privacy policy | Policy utilizzo | Cookie policy