Casa indipendente in vendita

Frattamaggiore, Via Giuseppe Mazzini
€ 620.000
6 locali 6 locali
280 Mq 280 Mq
3 bagni 3 bagni

Casa indipendente in vendita

Frattamaggiore, Via Giuseppe Mazzini

Descrizione annuncio

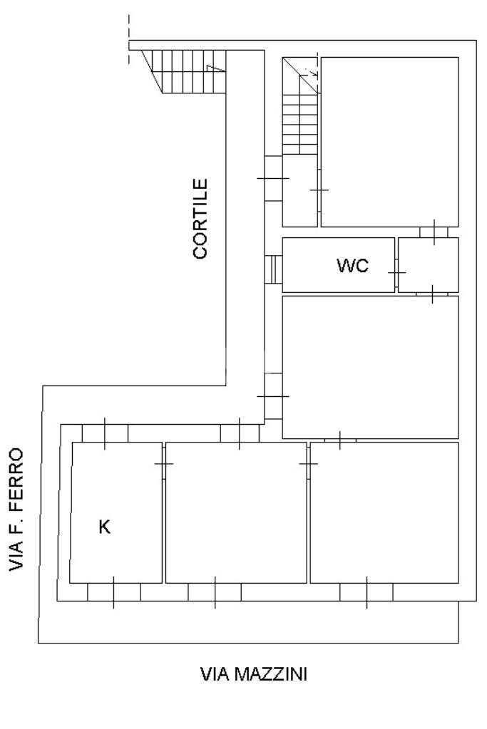
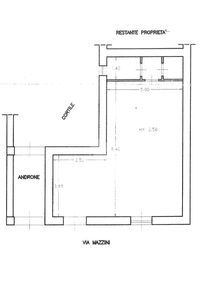
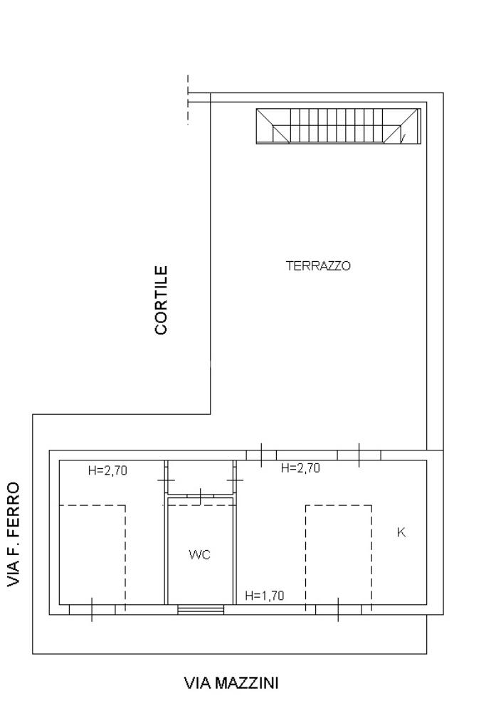
Una soluzione indipendente così, non è facile da trovare a Frattamaggiore. Ci troviamo in via Mazzini, una strada commerciale e ben collegata con il resto della città. La soluzione è formata sia da appartamenti che da un locale commerciale, ciò permette di poter avere anche una rendita mensile fissa. Al primo piano abbiamo il primo appartamento composto da: cucina, soggiorno, tre camere e bagno oltre ad una doppia balconata, una interna e l'altra su strada. La scala esterna ci conduce al secondo piano: qui veniamo accolti da uno spettacolare terrazzo. L' appartamento è composto da zona giorno, camera da letto e bagno, oltre ad un balcone che abbraccia l'intero immobile, affacciandosi anche su strada. Al piano terra troviamo un cortile pavimentato utile per il parcheggio di almeno tre auto e un vano deposito. Non farti scappare questa opportunità, chiamaci e fissa un appuntamento!

Mostra tutto

Nelle vicinanze

Trasporto pubblico Trasporto pubblico
Frattamaggiore-Grumo Nevano
Frattamaggiore-Grumo Nevano
960 m
Sant'Antimo-Sant'Arpino
Sant'Antimo-Sant'Arpino
2,0 Km
Ricariche auto elettriche Ricariche auto elettriche
Stazione Frattamaggiore - Grumo Nevano | EnelX
950 m
Scuole Scuole
Istituto Comprensivo Giuseppe Mazzini
350 m
Istituto Comprensivo Bartolomeo Capasso
410 m
Scuole
690 m
Istituto Nuovo Polo Scolastico Anselmo D'Aosta
730 m
Istituto Paritario Amerigo Vespucci
930 m
Farmacia Farmacia
Farmacia Manna
490 m
Farmacia
1,3 Km
Farmacia D'Amore
2,2 Km
Farmacia Vivo
2,6 Km
Ospedali Ospedali
Ospedale Civile di Frattamaggiore "San Giovanni di Dio"
200 m
Supermercati Supermercati
Supermercati
300 m
Conad
470 m
MD
560 m
ilCentro Superstore
1,0 Km
Sigma
1,2 Km
Negozi Negozi
United Colors of Benetton
530 m
Officine Nazzaro 1951
560 m
OVS
690 m
Il Mercatone
1,8 Km
La Cremiere
2,2 Km
Bar Bar
Pacilio Caffetteria
470 m
Bar Dante
850 m
Bar della Stazione
930 m
Bar
1,2 Km
Bar Gallo
1,3 Km
Ristoranti Ristoranti
Sapureat
250 m
PalaPizza
560 m
Antica Pizzeria Frattese
670 m
Anema e Pizza
920 m
Ristoranti
1,1 Km
Mostra tutto

Caratteristiche

Rif.:
61142721
Piano:
2 di 2 (Piano su più livelli)
Posti auto:
3
Balconi:
3
Terrazzi:
1
Camere da letto:
4
Mostra tutto
Prezzo Prezzo
€ 620.000
Rata mutuo Rata mutuo
€ 2.945 / mese
Spese annue Spese annue
€ 0
Proponi il tuo prezzoProponi il tuo prezzo
Immobile valutato con T·Valuta

Classe Energetica

G
G
G
G
G
G
G
G
G
EP globale non rinnovabile:
241.33 kW h/m² anno
EP globale rinnovabile:
0.63 kW h/m² anno
EP invernale del fabbricato:
EP estiva del fabbricato:
Anno di costruzione:
1960
Riscaldamento:
Autonomo
Tipo impianto:
A radiatori
Tipo alimentazione:
Metano

Ti interessa visionare l'immobile?

Fissa un appuntamento  Fissa un appuntamento

Richiedi informazioni

Clicca su Leggi per aprire l'informativa
* Questi campi sono obbligatori

Calcola il tuo mutuo

Semplice e senza impegno
Anticipo

( % )
Mutuo

( % )

pochi semplici passi

inserisci i tuoi dati
Questionario completato
Grazie per aver richiesto un appuntamento senza impegno con un nostro Consulente del Credito e Assicurativo.

Hai inserito correttamente tutti i dati necessari e a breve riceverai una e-mail con un link da convalidare per inviare i tuoi dati.
Affiliato
Mc Immobiliare Srl
Corso Durante, 181 80027 Frattamaggiore (NA)

Il nostro staff


  • Anna Santoro
    Coordinatrice

  • Fabio Ciccarelli
    Affiliato

  • Filippo Compagnone
    Collaboratore
Corso Durante, 181 80027 Frattamaggiore (NA)
Zona: Frattamaggiore
Mostra su mappa
Orari: dal lunedì al venerdì 9.00-13.00 - 15.30-20.30; sabato 9.00-13.00 - 16.30-19.30; domenica 11.00-13.00
Affiliato
Mc Immobiliare Srl
Corso Durante, 181 80027 Frattamaggiore (NA)

2026 Tecnocasa Franchising S.p.A. - P. IVA 08365160152 - Via Monte Bianco 60/A 20089 Rozzano (MI). Ogni agenzia ha un proprio titolare ed è autonoma. Privacy policy | Policy utilizzo | Cookie policy