Casa indipendente in vendita

Frattamaggiore, Via Canonico Michelangelo Patricelli
€ 260.000
4 locali 4 locali
262 Mq 262 Mq
2 bagni 2 bagni

Casa indipendente in vendita

Frattamaggiore, Via Canonico Michelangelo Patricelli

Descrizione annuncio

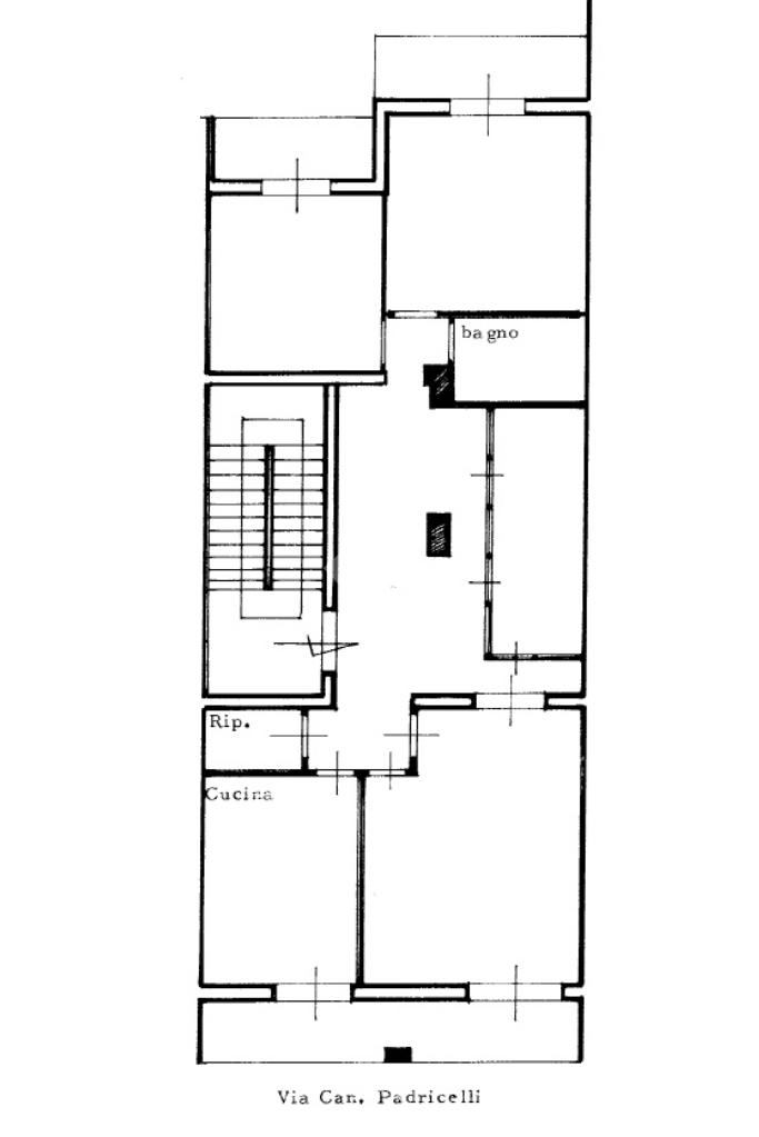
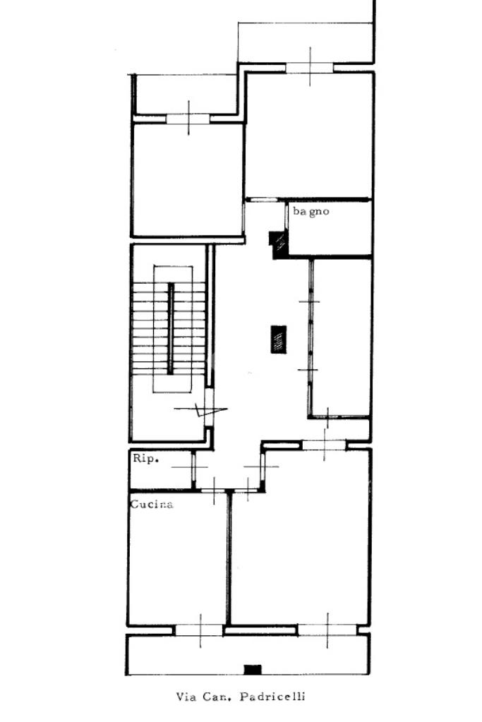
Soluzione indipendente con permesso di costruire approvato dal comune di Frattamaggiore per la riqualificazione dell'intero fabbricato. La soluzione è ideale per chi cerca indipendenza oppure vuole effettuare un investimento con un progetto già definito. Il fabbricato è composto da: vano abitativo al piano terra; appartamento al primo piano composto da zona giorno su strada e zona notte che affaccia sul cortile interno. Lastrico di copertura su cui è possibile creare un sottotetto così come rilasciato dal permesso comunale. All'interno è presente un androne coperto che può diventare uno splendido box e alle spalle un cortile da cui è possibile ricavare una zona di puro relax. Tra le foto sono presenti dei rendering che aiutano ad avere una idea della potenzialità che ha la soluzione.

Mostra tutto

Nelle vicinanze

Trasporto pubblico Trasporto pubblico
Frattamaggiore-Grumo Nevano
Frattamaggiore-Grumo Nevano
950 m
Sant'Antimo-Sant'Arpino
Sant'Antimo-Sant'Arpino
2,0 Km
Ricariche auto elettriche Ricariche auto elettriche
Stazione Frattamaggiore - Grumo Nevano | EnelX
950 m
Scuole Scuole
Istituto Comprensivo Giuseppe Mazzini
340 m
Istituto Comprensivo Bartolomeo Capasso
400 m
Istituto Nuovo Polo Scolastico Anselmo D'Aosta
690 m
Scuole
710 m
Istituto Paritario Amerigo Vespucci
920 m
Farmacia Farmacia
Farmacia Manna
450 m
Farmacia
1,3 Km
Farmacia D'Amore
2,2 Km
Farmacia Vivo
2,6 Km
Ospedali Ospedali
Ospedale Civile di Frattamaggiore "San Giovanni di Dio"
230 m
Supermercati Supermercati
Supermercati
280 m
Conad
440 m
MD
600 m
ilCentro Superstore
970 m
Sigma
1,2 Km
Negozi Negozi
United Colors of Benetton
500 m
Officine Nazzaro 1951
570 m
OVS
650 m
Il Mercatone
1,8 Km
La Cremiere
2,2 Km
Bar Bar
Pacilio Caffetteria
430 m
Bar Dante
810 m
Bar della Stazione
920 m
Bar Gallo
1,2 Km
Bar Mele
1,2 Km
Ristoranti Ristoranti
Sapureat
230 m
PalaPizza
540 m
Antica Pizzeria Frattese
640 m
Anema e Pizza
900 m
Ristoranti
1,0 Km
Mostra tutto

Caratteristiche

Rif.:
61195344
Piano:
1 di 2 (Piano su più livelli)
Posti auto:
4
Balconi:
4
Camere da letto:
2
Arredamento:
Assente
Mostra tutto
Prezzo Prezzo
€ 260.000
Rata mutuo Rata mutuo
€ 1.235 / mese
Spese annue Spese annue
€ 0
Proponi il tuo prezzoProponi il tuo prezzo
Immobile valutato con T·Valuta

Classe Energetica

G
G
G
G
G
G
G
G
G
EP globale non rinnovabile:
241.33 kW h/m² anno
EP globale rinnovabile:
0.63 kW h/m² anno
EP invernale del fabbricato:
EP estiva del fabbricato:
Anno di costruzione:
1967
Riscaldamento:
Autonomo
Tipo impianto:
A stufa
Tipo alimentazione:
GPL

Ti interessa visionare l'immobile?

Fissa un appuntamento  Fissa un appuntamento

Richiedi informazioni

Clicca su Leggi per aprire l'informativa
* Questi campi sono obbligatori

Calcola il tuo mutuo

Semplice e senza impegno
Anticipo

( % )
Mutuo

( % )

pochi semplici passi

inserisci i tuoi dati
Questionario completato
Grazie per aver richiesto un appuntamento senza impegno con un nostro Consulente del Credito e Assicurativo.

Hai inserito correttamente tutti i dati necessari e a breve riceverai una e-mail con un link da convalidare per inviare i tuoi dati.
Affiliato
Mc Immobiliare Srl
Corso Durante, 181 80027 Frattamaggiore (NA)

Il nostro staff


  • Anna Santoro
    Coordinatrice

  • Fabio Ciccarelli
    Affiliato

  • Filippo Compagnone
    Collaboratore
Corso Durante, 181 80027 Frattamaggiore (NA)
Zona: Frattamaggiore
Mostra su mappa
Orari: dal lunedì al venerdì 9.00-13.00 - 15.30-20.30; sabato 9.00-13.00 - 16.30-19.30; domenica 11.00-13.00
Affiliato
Mc Immobiliare Srl
Corso Durante, 181 80027 Frattamaggiore (NA)

2026 Tecnocasa Franchising S.p.A. - P. IVA 08365160152 - Via Monte Bianco 60/A 20089 Rozzano (MI). Ogni agenzia ha un proprio titolare ed è autonoma. Privacy policy | Policy utilizzo | Cookie policy